星設計·090期 | 廣州花都獅嶺聯合廣場銷售中心——第六屆“星藝杯”獲獎作品
2018-11-18
導讀:設計幸福,為愛筑巢。用設計詮釋藝術空間。用設計見證星藝力量。
星藝杯·公共項目方案設計作品

星設計·090期
設計幸福,為愛筑巢
用設計詮釋藝術空間
用設計見證星藝力量
用設計見證一個城市的幸福
星設計,星力量
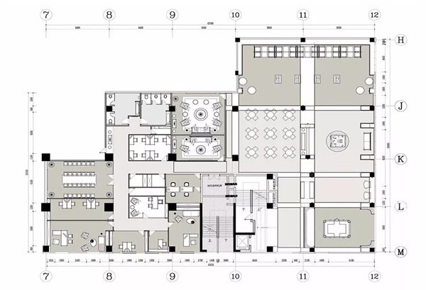
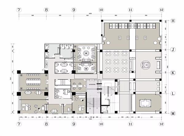
廣州花都獅嶺聯合廣場銷售中心
第六屆“星藝杯” 優(yōu)秀獎作品

項目名稱:廣州花都獅嶺聯合廣場銷售中心
項目設計:廣東星藝裝飾集團
項目地址:廣東廣州
設計單位:集團設計研究院





裝修流程







